Mobilier Magasin Voir tout
Systèmes d'agencement Gondoles métalliques, Gondoles magasin Mobilier de présentation Comptoirs caisse, Comptoirs magasin Étagères Vitrines magasin Grilles d'exposition Crémaillères Panneaux pour agencement mural Accessoires panneaux rainurés Tablettes Accessoires muraux Mobilier CHR
Matériel Boutique et Marché Voir tout
Matériel marché, Matériel forains Paniers magasin Chariots magasin, caddies magasin Portants à vêtements Cintres Cabines d'essayage Miroirs d'essayage Présentoirs fil et soldeurs Présentoirs bijoux Présentoirs, supports produits Défroisseurs vapeur Ventilateurs Accessoires couture
Mannequin et Buste Voir tout
Mannequins Bustes mannequins, torses mannequins Têtes Jambes et pieds Bustiers et fessiers Bustes cintres
Emballage Boutique Voir tout
Sacs kraft Sacs pelliculés Sacs plastique Sacs textiles Papiers Cadeaux Pochettes cadeaux Boîtes cadeaux Bons cadeaux Étiquettes cadeaux Bolducs, Rubans, Accessoires Les films et fibres Papiers de soie Dévidoirs papiers cadeaux et bolducs Accessoires fleuristes
Emballage alimentaire Voir tout
Contenants alimentaires Emballage Vente à emporter Sacs et sachets alimentaires Emballage Boulangerie, Emballage pâtisserie Emballage Confiserie Films, papiers ingraissables et sachets papier alimentaires Machine sous vide, Sachets sous vide Vaisselle jetable, Nappes et Serviettes papier
Contenants et coffrets Voir tout
Nos collections Bouteilles et pots cylindriques Coffrets bois Contenants bouteilles, Emballage bouteille Corbeilles Frisures de calage Paniers Plateaux Vanneries
Emballage d'expédition Voir tout
Caisses américaines cartons Films étirables manuels Cartons d'expédition, Boîtes carton Pochettes d'envoi colis Enveloppes à bulles Tubes carton emballage Pochettes d'expédition plastique Plastique bulle emballage, Papier bulle, Film bulle Particules de calage, Protection colis Kraft, carton ondulé Pèses colis et pèses lettres Rubans adhésifs et dévidoirs Marquage d'expédition Cerclage Bracelets élastiques et Ficelles
Signalétique, Affichage Voir tout
Affichage évènementiel Câbles et cimaises Supports d'affichage Supports PLV et prix Porte-visuels Porte-brochures Plaques de signalisation Lettres et chiffres adhésifs Badges Urnes
Étiquetage Voir tout
Étiqueteuses manuelles Imprimantes Étiquettes Pistolets, aiguilles Titreuses électroniques Etiquettes et cartons fluo Etiquettes Étiquettes alimentaires Porte-étiquettes Coffrets de prix
Papeterie et Bureau Voir tout
Mobilier de bureau Bureautique Porte-blocs et Porte-documents Classement - Archivage Papeterie Fournitures de bureau Écriture et correction Enveloppes et Correspondance Tampons Manifolds Tickets et Bracelets évènementiels Ergonomie bureautique
Manutention, Stockage, Electricité Voir tout
Matériel de manutention Marchepieds, escabeaux et plateformes Etagères de stockage Bacs plastique Vestiaires Accessibilité Électricité
Hygiène et entretien Voir tout
Matériel d'entretien Produits d'entretien Dévidoirs et papiers Poubelles professionnelles Sacs poubelle professionnels Cendriers professionnels Tapis Porte-parapluies et corbeilles Hygiène de la personne
Évènements saisonniers Voir tout
Fête des mères Fête des pères Soldes Foire aux vins Octobre rose Black Friday Emballage cadeaux Noël Saint Valentin Pâques French Days
Décoration Voir tout
Accessoires et Objets déco Décors marins Plantes et Fleurs artificielles Aliments factices Plumes Ballons et Accessoires de fête Drapeaux de France Revêtements, Tissus et Rideaux
Systèmes d'agencement Voir tout
Ligne Square 25 or Ligne Square 25 chromé Ligne Square 25 noir Ligne Square 25 blanc Ligne Factory Ligne Crémawall Échelles Wall Crémaillères économiques Ligne Tubulaire Ligne Memphis Ligne Scala-Triscala Ligne Single Ligne City Ligne Hobby
Gondoles métalliques, Gondoles magasin Voir tout
Ligne Gondoléko Blanc Ligne Store blanc pas de 25 mm Ligne Store blanc pas de 50 mm Ligne Store gris métallisé pas de 25 mm Ligne Store gris métallisé pas de 50 mm Ligne Store noir pas de 25 mm Ligne Store noir Sablé pas de 25 mm Accessoires barres de charge Fonds rainurés Ligne Store Fonds pleins Ligne Store Accessoires fonds perforés Joues, Plinthes et Caissons pour Ligne Store Diviseurs et poussoirs
Mobilier de présentation Voir tout
Ligne Authentique Ligne Tradition Ligne Industrielle Meubles et présentoirs cavistes Ligne Global Structures tables Square 25 Meubles rainurés Tables de présentation Étagères vitrines Étagères en bois Podiums Caissons de rangement Caisse en bois
Comptoirs caisse, Comptoirs magasin Voir tout
Comptoirs Boutique Comptoirs Easy Comptoirs One Comptoir Global Comptoirs Sixties Comptoirs Square 25 Comptoirs Stand Expo Bureaux d'accueil Sunday Sièges de caisse Vitres de protection de comptoir
Étagères Voir tout
Etagères Chrom'X Chromées Etagères Chrom'X Grises Etagères Vintage Etagères de stockage
Vitrines magasin Voir tout
Vitrines tablettes fixes Vitrines bois tablettes réglables Vitrines alu tablettes réglables Vitrines de comptoir Vitrines murales Vitrines alimentaires Distributeurs de vrac
Grilles d'exposition Voir tout
Présentoirs grilles Grilles murales Tiges et Bras pour grilles Tablettes, Corbeilles et Porte visuels pour grilles
Panneaux pour agencement mural Voir tout
Panneaux rainurés Fonds Bois
Accessoires panneaux rainurés Voir tout
Profils aluminium Bras Broches Penderies pour panneaux rainurés Consoles pour tablettes Tablettes pour panneaux rainurés Porte chaussures Bacs pour panneaux rainurés Porte-téléphone Porte-lunettes Accessoires divers Tiges simples pour réserve Porte affiches et porte revues pour panneaux rainurés Présentoirs multimédia
Tablettes Voir tout
Tablettes Bois Mélaminé Tablettes Bois Brut Tablettes en verre
Mobilier CHR Voir tout
Tables Chaises de terrasse Chaises d'intérieur Tabourets Tables pliantes, Tables traiteur Fauteuils et poufs
Matériel marché, Matériel forains Voir tout
Tentes pliantes, Barnums pliants Parasols de marché, Parasols forains Pieds de parasol Poids pour parasol Entourages de parasol Gouttières de parasol Chandelles Douilles Penderies et accessoires pour parasol Tables de marché, étals de marché
Portants à vêtements Voir tout
Portants à vêtements droits Portants à vêtements pliables Roulettes pour portants Portants à vêtements ronds Portants à vêtements multibras Portants à vêtements spéciaux Portants à vêtements muraux Ronds de taille Accessoires pour portants à vêtements Housses à vêtements
Cintres Voir tout
Cintres bois Cintres à pinces Cintres métal Cintres plastique Cintres enfants Cintres pour accessoires Cintres lingerie, maillots de bain Cintres chaussures Marques taille pour cintres Perches télescopiques, range-cintres Accessoires cintres
Présentoirs fil et soldeurs Voir tout
Présentoirs fil Bacs soldeurs, Bacs de fouille Corbeilles fil
Présentoirs bijoux Voir tout
Présentoirs colliers et pendentifs Présentoirs bracelets et montres Présentoirs bagues Présentoirs boucles d'oreilles Présentoirs mains bijoux Coffrets vitrines bijoux Présentoirs à bijoux multifonction
Présentoirs, supports produits Voir tout
Présentoirs sacs et portefeuilles Présentoirs chaussures Présentoirs divers Présentoirs lunettes Présentoirs téléphonie, multimédia Présentoirs cartes postales Supports Plexi Chevalets Présentoirs stylos
Mannequins Voir tout
Mannequins cheveux sculptés Mannequins plastique sans perruque Mannequins fibre de verre sans perruque Perruques pour mannequins Mannequins grandes tailles Mannequins abstraits Mannequins sportifs Mannequins sans tête Mannequins enfants
Bustes mannequins, torses mannequins Voir tout
Bustes couture, torses couture Bustes Thermoformés
Sacs kraft Voir tout
Sacs kraft brun poignées torsadées Sacs kraft blanc poignées torsadées Sacs kraft couleur poignées torsadées Sacs kraft métallisés poignées torsadées Sacs kraft brun poignées plates Sacs kraft blanc poignées plates Sacs kraft couleur poignées plates Sacs kraft à fenêtre Sacs kraft poignées découpées Sacs kraft luxe Sacs kraft à motifs
Sacs pelliculés Voir tout
Sacs pelliculés poignées cordelette Sacs pelliculés unis, poignées ruban Sacs pelliculés à motifs
Sacs plastique Voir tout
Sacs plastique unis, poignées rapportées Sacs plastique unis, poignées découpées Sacs plastique à motifs, poignées découpées Sacs Polyferm Sacs rabats adhésifs
Sacs textiles Voir tout
Pochettes organza Sachets velours, Pochettes simili cuir Sachets coton Sacs coton Sacs jute Sacs non tissés Sacs tissés
Papiers Cadeaux Voir tout
Papiers cadeaux unis Papiers cadeaux kraft à motifs Papier cadeaux couchés à motifs Papiers cadeaux à effets Papiers cadeaux enfants
Pochettes cadeaux Voir tout
Pochettes cadeaux unies Pochettes cadeaux à motifs Pochettes cadeaux métallisées Pochettes cadeaux luxe Pochettes SOS kraft
Boîtes cadeaux Voir tout
Boites berlingots Boites carton avec poignée Boites cadeaux carton pliables Boites cloches Boites aimantées Écrins à bijoux, Coffrets à bijoux
Étiquettes cadeaux Voir tout
Étiquettes cadeaux adhésives Étiquettes cadeaux ferme sac Etiquettes cadeaux à trou Étiquettes personnalisées
Bolducs, Rubans, Accessoires Voir tout
Bolducs unis Bolducs imprimés et à motifs Raphias Rubans tissu, Cordons Étoiles adhésives, Noeuds à tirer Pinces Ficelle
Les films et fibres Voir tout
Films polypropylène neutres Films polypropylène à motifs Cônes fleuristes Films métallisés réversibles polypropylène
Contenants alimentaires Voir tout
Barquettes plastique Moules jetables, Caissettes papier Pots à sauce, Verrines jetables Boîtes traiteur, Boîtes plateaux traiteur Bacs traiteurs, Bacs alimentaires Plateaux de service, Plats jetables
Emballage Vente à emporter Voir tout
Boîtes repas jetables, Plateaux compartimentés Boîtes salade, Bols salade Pots à soupe, Boîtes à pâtes Emballage snacking Barquettes frites, Cornets frites Sacs vente à emporter Stickers Alimentaires
Sacs et sachets alimentaires Voir tout
Sacs plastique bretelles Sacs plastique liassés Sacs fruits et légumes Sachets doypacks Sacs SOS Sacs SOS avec fenêtre Sachets papier blanc
Emballage Boulangerie, Emballage pâtisserie Voir tout
Sacs à pain, Sacs baguettes Emballage sandwich Sacs croissants, Sachets viennoiseries Boîtes pâtissières, Caissettes pâtissières Papiers pâtissier, Papiers cuisson Semelles gâteaux, Supports gâteaux Boîtes à bûches
Emballage Confiserie Voir tout
Sachets bonbon, Sachets confiserie Clips fermeture sachets, Barrettes fermeture sachets Ballotins chocolats vides Intercalaires pour ballotins Boîtes macarons Pochettes, étuis & valisettes Boîtes dragées, Boîtes bonbons
Vaisselle jetable, Nappes et Serviettes papier Voir tout
Assiettes jetables, Assiettes plastique réutilisables Couverts jetables, Couverts bois Gobelets carton, Gobelets café Gobelets plastique, Flûtes plastique, Verres à pied plastique Touillettes bois, Piques à brochettes et Pailles carton Serviettes jetables, Serviettes cocktails Nappes papier, Nappes jetables Chemins de table jetables, Sets de table papier
Nos collections Voir tout
L'Atelier des Gourmands Beauté Bord de mer Brasseur
Coffrets bois Voir tout
Paniers bois, Caisses bois Barquettes bois, Cagettes bois
Contenants bouteilles, Emballage bouteille Voir tout
Sacs pour bouteilles de vin Coffrets pour bouteilles de vin, Boîtes pour bouteilles de vin Mètres de bières, Emballages pour bouteilles de bières Expédition bouteilles Étiquettes diverses
Corbeilles Voir tout
Corbeilles bambou Corbeilles carton Corbeilles métal
Affichage évènementiel Voir tout
Affiches Soldes Affiches Destockage / Liquidation
Supports d'affichage Voir tout
Porte-affiches adhésifs Porte-affiches à suspendre Cadres clic clac, Cadres de porte Vitrines d'affichage Stop trottoir Tableaux ardoises Tableaux lumineux Tableaux liège Aimants pour tableaux magnétiques Fixations tableaux Tableaux effaçables
Supports PLV et prix Voir tout
Éléments de suspension Crochets - Anneaux Porte-affiches à clipser - à pincer Porte-affiches magnétiques Affichage Prix et tarifs Porte-affiches à poser Stop Rayon
Porte-visuels Voir tout
Porte-visuels de comptoir Porte-visuels muraux - à suspendre Porte-visuels pour grilles Porte-visuels sur pied
Porte-brochures Voir tout
Porte-brochures de comptoir Porte-brochures muraux Porte-brochures sur pied
Plaques de signalisation Voir tout
Vinyles adhésifs Plaques adhésives Alu Plaques PVC Panneaux horaires
Étiqueteuses manuelles Voir tout
Étiqueteuses Encreurs pour étiqueteuses Étiquettes pour étiqueteuses
Pistolets, aiguilles Voir tout
Pistolets textile Aiguilles pour pistolet textile Attaches pour pistolet textile Liens manuels antivol
Titreuses électroniques Voir tout
Titreuses Rubans cassettes pour Dymo Rubans cassettes pour Brother
Etiquettes et cartons fluo Voir tout
Cartons indélébiles Feuilles fluo Cartons effaçables à sec PVC effaçables à l'eau Plaques alvéolaires
Etiquettes Voir tout
Étiquettes à trou Étiquettes à fil Étiquettes à cheval Étiquettes chevalets Etiquettes soldes Étiquettes emballage cadeau Gommettes adhésives évènementielles Gommettes de couleur Étiquettes adhésives neutres Étiquettes adhésives bijouterie Étiquettes pour porte-étiquettes
Étiquettes alimentaires Voir tout
Étiquettes à poser Étiquettes à pique Étiquettes à pattes Étiquettes simples Étiquettes adhésives alimentaires
Porte-étiquettes Voir tout
Porte-étiquettes à poser Porte-étiquettes pour tablettes Porte-étiquettes pour corbeilles et tiges Porte-étiquettes pour panneaux rainurés
Mobilier de bureau Voir tout
Bureaux Jazz Bureaux Astrolite Bureaux Sunday Bureaux d'accueil Sunday Bureaux à la carte Mobilier coworking Meubles de Rangement Porte-manteaux, Patères Sièges de bureaux Horloges
Bureautique Voir tout
Calculatrices Supports sauvegarde Destructeurs de documents Plastifieuses Relieuses Nettoyant bureautique
Classement - Archivage Voir tout
Classeurs à levier, Classeurs A4 Intercalaires classeur, Trieurs documents Protèges-documents, Porte-vues Pupitres protèges-documents Dossiers suspendus Chemises à élastique, Chemises dossier Boîtes archives, Boîtes de transfert Corbeilles à courrier et revues Corbeilles à papier Modules de classement
Papeterie Voir tout
Agendas-Répertoires Calendriers professionnels Papier imprimante Fiches Bristol Notes repositionnables Cahiers et blocs notes Blocs vendeur, Blocs commande Étiquettes adhésives neutres Gommettes de couleur
Fournitures de bureau Voir tout
Ciseaux Cutters Plaques de découpe Perforateurs Pots à crayons Pinces et trombones Punaises-Épingles Dévidoirs, adhésifs, colles Double face, patafix, velcro Bracelets élastiques caoutchouc Agrafage Guillotines papier, Rogneuses papier
Écriture et correction Voir tout
Crayons à papier Stylos billes Stylos feutres Marqueurs Surligneurs Correction Craies Règles et traces lettres
Enveloppes et Correspondance Voir tout
Cartes de visite et enveloppes Enveloppes blanches Pochettes kraft Pochettes à courrier
Tampons Voir tout
Tampons personnalisés Tampons en kit Tampons textes standards Encreurs pour tampons automatiques Encriers
Manifolds Voir tout
Factures Livraisons Commandes Carnets autocopiants Registres et agendas de comptabilité Blocs maître d'hôtel
Matériel de manutention Voir tout
Chariots de manutention Chariots diables Roues à platine Accessoires de déménagement
Marchepieds, escabeaux et plateformes Voir tout
Tabourets marchepieds Escabeaux
Etagères de stockage Voir tout
Étagères de réserve Racks légers Racks semi-lourds Racks lourds
Bacs plastique Voir tout
Bacs plastique à parois et fond pleins Bacs à parois ajourées Bacs traiteur Bacs de rangement Bacs à bec Blocs tiroirs
Électricité Voir tout
Luminaires professionnels Ampoules Bandeaux LED Guirlandes extérieures Piles Prises et rallonges
Matériel d'entretien Voir tout
Aspirateurs Balais et pelles Gamme alimentaire Spécial Labo Lavage sols Lavage vitres Vaporisateur Essuyage
Produits d'entretien Voir tout
Entretiens divers Lessives professionnelles, Assouplissants linge Produits vaisselle Produits vitres Désodorisants Produits anti-insectes
Dévidoirs et papiers Voir tout
Dévidoirs hygiène Essuie-mains Papier toilette et mouchoirs Draps d'examen Sèche-mains Distributeur de savon Accessoires WC
Hygiène de la personne Voir tout
Savon mains Gel hydroalcoolique Gants jetables Masques Vêtements de protection
Fête des mères Voir tout
Sacs cadeaux fête des mères, Pochettes cadeaux fête des mères Etiquettes fête des mères, Bons cadeaux fête des mères Papiers cadeaux fête des mères, papiers de soie fête des mères Bolducs fête des mères Boîtes cadeaux fête des mères, Contenants fête des mères Affiches fête des mères, Décors fête des mères
Fête des pères Voir tout
Sacs cadeaux, Boîtes cadeaux & Coffrets fête des pères Etiquettes fête des pères, Bons cadeaux fête des pères Pochettes cadeaux fête des pères Bolducs fête des pères, Papiers de soie fête des pères Affiches fête des pères, Décors fête des pères
Soldes Voir tout
Affiches Soldes Affiches Prix et Pourcentages Affiches Nouvelle collection Affiches Ventes Privées Banderoles Soldes et Destockage Affiches démarques Étiquettes Soldes Étiquettes adhésives Soldes T-shirts Soldes Pistolets textile et Étiqueteuses Présentoirs fil et soldeurs
Foire aux vins Voir tout
Meubles et Présentoirs Foire aux vins Sacs bouteilles Foire aux Vins Boîtes et coffrets à bouteilles Foire aux Vins Contenants à bouteilles Foire aux Vins Expédition de bouteilles Foire aux Vins Films et Papiers cadeaux Foire aux Vins Étiquettes et bons cadeaux Foire aux Vins Déco cavistes Foire aux Vins
Emballage cadeaux Noël Voir tout
Papiers cadeaux Noël Pochettes cadeaux Noël Étiquettes Noël Bolducs, Rubans Noël Sacs cadeaux Noël Boîtes cadeaux Noël Bons cadeaux Noël Sachets chocolats Noël Corbeilles Noël Sacs et coffrets bouteilles Noël
Saint Valentin Voir tout
Affiches St Valentin Sacs cadeaux Saint-Valentin, Pochettes cadeaux Saint-Valentin Papiers cadeaux, Films fleuristes et Papiers de soie St Valentin Étiquettes et Bons cadeaux St Valentin Bolducs, Raphias et Rubans St Valentin Décors Vitrine St Valentin Boîtes cadeaux Saint-Valentin
Pâques Voir tout
Décor Pâques, Vitrine Pâques Sachets Pâques, Ballotins chocolats vides Pâques Sacs, Corbeilles et Paniers à garnir Pâques Emballage Pâques

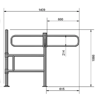
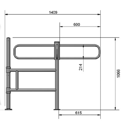
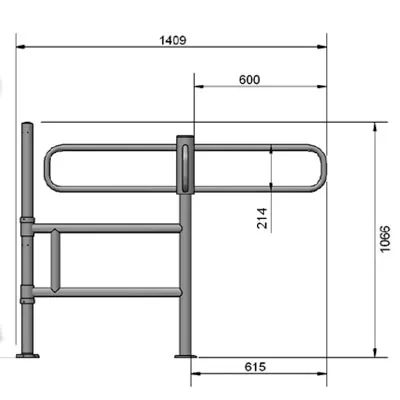
Tourniquet complet "ouverture à gauche" - Chromé - L 140 x H 106 cm

Tourniquet complet "ouverture à gauche"

Tourniquet complet ouverture à gauche - Guidage à fixer
Tourniquet complet ouverture à gauche - Guidage à fixer
Tourniquet complet ouverture à gauche - Guidage à fixer-1
Tourniquet complet ouverture à gauche - Guidage à fixer
Tourniquet complet ouverture à gauche - Guidage à fixer
Tourniquet complet ouverture à gauche - Guidage à fixer-1
Tourniquet complet "ouverture à gauche"
Code : 21806
Couleur : Chromé
Dimensions : L 140 x H 106 cm
Poids : 17,96 kg
1179,90  € HT
DISPONIBLE SUR COMMANDE
NOUS CONSULTER
+ éco-participation  €
+ éco-mobilier  €
+ TGAP**  €
L'unité
+ forfait transport*
Sur commande
*Des frais de livraison et d'emballage peuvent s'ajouter.
**Taxe générale sur les activités polluantes

Description

1 poteau + l'élément tournant + l'embase.
Tourne en sens inverse des aiguilles d’une montre.
Vous souhaitez mettre en place une entrée, une sortie, diviser un espace, en interdire l’accès, le guidage mécanique est la réponse appropriée à vos besoins.
Le tourniquet autorise le passage d’une seule personne à la fois et ne permet pas le retour en arrière.
Système anti-panique intégré permettant la sortie du public en cas de besoin.
Vendu sans élément guide.
Nos conseillers vous répondent du lundi au vendredi de 8h30 à 18h sans interruption par téléphone au :  +33 (0) 2 99 71 05 71
À votre écoute
Nos conseillers vous répondent
du lundi au vendredi de 8h30 à 18h sans interruption
par téléphone au : +33 (0) 2 99 71 05 71
Nous contacter